Leave a Message

By providing your contact information to Second City Agents, your personal information will be processed in accordance with Second City Agents's Privacy Policy. By checking the box(es) below, you consent to receive communications regarding your real estate inquiries and related marketing and promotional updates in the manner selected by you. For SMS text messages, message frequency varies. Message and data rates may apply. You may opt out of receiving further communications from Second City Agents at any time. To opt out of receiving SMS text messages, reply STOP to unsubscribe.

Thank you for your message. We will be in touch with you shortly.

See all photos
Listed by Elias Masud with Compass 773-466-7150
Eli Masud

1158 Vista Drive

$499,000 1158 Vista Drive, Gurnee, IL 60031
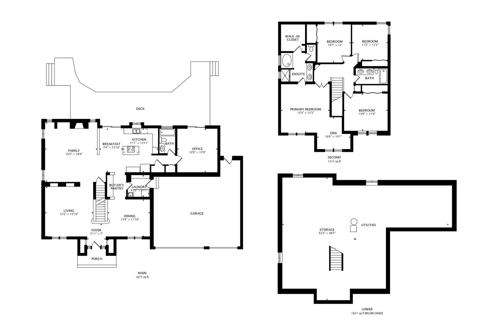
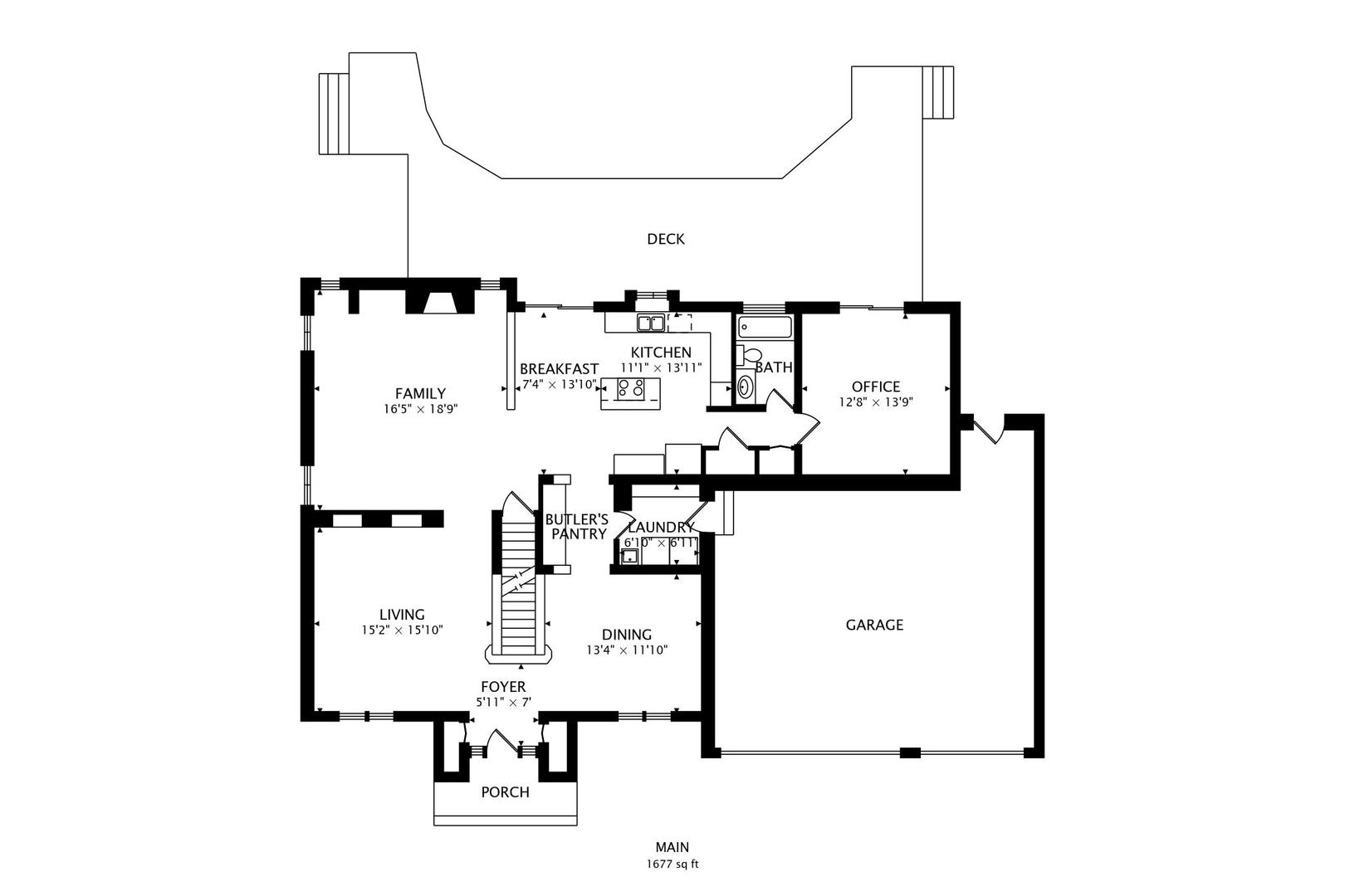
Welcome to 1158 Vista, a spacious 4 bedroom + office/den, 3-bath home situated on a rare over 1/3-acre corner lot in a desirable Gurnee subdivision. The main level features a functional and inviting layout with formal living and dining rooms, a large family room, eat-in kitchen, and a versatile den that can easily serve as a fifth bedroom. A full bath, laundry room, and direct access to the attached three-car garage complete the level. Upstairs offers three generously sized secondary bedrooms and a primary suite with a cozy reading nook, walk-in closet, and private bath with double vanity, soaking tub, separate shower, and water closet. The secondary bedrooms are served by an additional full hall bathroom featuring a double vanity. A full unfinished basement provides excellent potential for additional living space or storage. Outside, enjoy a generously sized fully fenced yard offering great outdoor flexibility. With great square footage, a flexible floor plan, and a large lot, this home presents a wonderful opportunity to personalize and build value over time. The property is being conveyed in as-is condition.
  • Active Under Contract
    Status
  • 4
    Bedrooms
  • 3
    Bathrooms
  • 1995
    Year Built
  • 2,773 Sq.Ft.
    Living Area

Features & Amenities

Area & Lot

  • Status: Active Under Contract
  • Living Space: 2,773 Sq.Ft.
  • Lot Size: 0.36 Acres
  • MLS® ID: 12551598
  • Type: Residential
  • Year Built: 1995
  • High School: Warren Township High School
  • School District: 121

Interior

  • Total Bedrooms: 4
  • Total Bathrooms: 3
  • Full Bathrooms: 3
  • Laundry Room: Main Level, In Unit, Laundry Chute, Sink
  • Appliances: Double Oven, Microwave, Dishwasher, Refrigerator, Washer, Dryer, Disposal, Cooktop
  • Other Interior Features: 1st Floor Full Bath, Built-in Features, Walk-In Closet(s), Separate Dining Room, Pantry

Exterior & Building

  • Garage Space: 3.0
  • Water Source: Public
  • Lot Features: Corner Lot
  • Parking: Yes, Garage Owned, Attached, Garage
  • Heat Type: Natural Gas
  • Air Conditioning: Central Air
  • Sewer: Public Sewer

Financial

  • Sales Price: $499,000
  • Real Estate Tax: $13,254/yr
  • HOA Fees: $50/mo

1158 Vista Drive

Work With Us

Every team member has deep roots in their local neighborhood, bring specialized business skills to the table, and has a hardworking mentality coming from a competitive athlete background. Make Second City Agents YOUR First Choice!
Contact Us
Follow Us